Проектирование ремонтной мастерской сельскохозяйственного предприятия
В задачи сельского хозяйства и агропромышленного комплекса включены ремонтно-обслуживающие предприятия сельского хозяйства, оборудование которых тщательно продумывается на каждом этапе реализации проекта. В этой статье мы расскажем, как происходит проектирование ремонтной мастерской сельскохозяйственного предприятия, внедряется технологическое оснащение с новыми прогрессивными линиями, улучшающими условия использования производственных площадей.

Так как проектирование ремонтной мастерской сельскохозяйственного предприятия проходит в условиях организации производственных площадей для ремонта машин и оборудования, обеспечивающих высокую рентабельность сельскохозяйственному предприятию, в-первую очередь перед проектировщиком ставится задача снижения себестоимости проекта. Решается эта задача разными актуальными на сегодняшний день способами.
Проектирование ремонтной мастерской сельскохозяйственного предприятия способствует успешной деятельности агропромышленного комплекса и решает многие производственные вопросы, направленные на развитие ремонтных служб сельхозпредприятий.
- Любое сельскохозяйственное предприятие, даже не очень масштабное, должно иметь развитую схему ремонтно-обслуживающих мастерских или пунктов технического обслуживания машин. В противном случае, оно лишается возможности выполнения определенного объема работ силами работников хозяйств в осенне-летний и весенней периоды сельскохозяйственных работами.
Это в свою очередь снизит занятость рабочих в хозяйстве, которые, наверняка, уедут на временные заработки в город. Акцентируя прежде всего функцию воздействия на то, что большая часть ремонта и технического обслуживания, особенно сложных видов специальной сельхозтехники, выполняется для хозяйств ремонтно-обслуживающими мастерскими, большой ремонтный объем приходится на ремонтные службы самих хозяйств, в которых все делается собственными силами жителей сельских местности. Поэтому осуществлять проектирование ремонтной мастерской сельскохозяйственного предприятия нужно после анализа всех сопутствующих развитию сельского хозяйства факторов.

Чтобы процесс ремонта и технического обслуживания автотранспорта, задействованного в сельском хозяйстве, был бесперебойным и быстрым по времени, в проектирование ремонтной мастерской сельскохозяйственного предприятия внедряются технологический и инженерный проект вместе в разработанной архитектурно-строительной концепцией, в которой рассчитываются показатели своевременного и качественного выполнения ремонтных работ, оснащение площадей современным оборудованием, эффективность предприятия с учетом необходимой производственной мощности и надежности.
Обоснованием исходных данных, указанных в техническом задании (ТЗ) заказчика занимаются проектировщики, инженеры и технологии. Их совместная работа предполагает, что проектирование ремонтной мастерской сельскохозяйственного предприятия будет проходить комплексно «под ключ». После с изучения состава машинно-тракторного парка в соответствующих единицах и годового плана переработки сельскозпродукции специалисты решают какими будут производственные площади мастерской ремонтной базы в зоне деятельности хозяйства с учетом кооперации с работой других ремонтных предприятий.
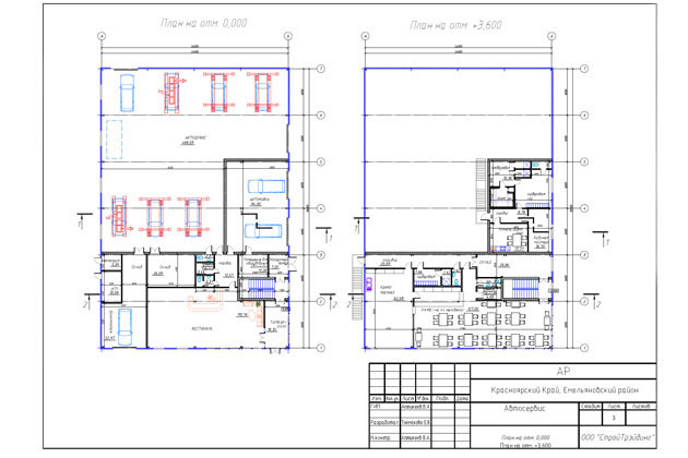
Вычислив общую трудоемкость работ, технических обслуживаний и устранение неисправностей начинается эскизное проектирование ремонтной мастерской сельскохозяйственного предприятия, в котором все зоны распределяются по участкам и видам работ:
- участок ТО технического обслуживания
- участок регулировочно-разборочных работ
- малярный цех и жестяницкие помещения
- слесарно-механические помещения и сварочный цех
- аккумуляторные и агрегатные площади
- шиномонтажный цех
- кузнечный участок
- площади для проведения вулканизационных работ и т.д.

В масштабных сельскохозяйственных предприятиях при осуществлении проектирования ремонтных мастерских может насчитываться до 100 внутренних цехов и участков, на которых проводятся необходимые работы слесарями по ТО и ТР, электриками, станочниками, жестянщиками, арматурщиками, слесарями по ремонту оборудования, сварщиками, аккумуляторщиками, кузнецами, малярами, персоналом моечно-уборочных работ.
Вы можете заказать индивидуальное проектирование ремонтной мастерской сельскохозяйственного предприятия или купить готовый (типовой) производственный проект у наших менеджеров, которые ждут ваши заявки по телефону 391 209-09-40. Обращайтесь!
Проектная документация. Проектные работы в Красноярске