Проектирование зданий
Объясняем, рекомендуем, делаем правильно
Проектная документация. Состав проектной документации. Эскизный проект Архитектурное проектирование. Как начинается проектирование любого здания С чего начать проектирование здания? Проектирование магазинов, супермаркетов и торговых центров Проектирование промышленных зданий с грузоподъемным оборудованием Проектирование промышленных предприятий Проектирование производственных зданий и производственных баз Проектирование офисных и административных зданий Проектирование складов и логистических центров Проект быстровозводимого здания Проекты зданий в Красноярске Проектные работы в Красноярске Архитектурно-строительное проектирование в Красноярске Проектирование зданий в Красноярске Проектирование ангаров и холодных складов Проектная документация. Разделы проектной документации. Проектные работы в Красноярске Проектирование металлоконструкций, проектирование зданий из металлоконструкций Проектирование автосервисов и автомоек Проектирование дилерских центров и автосалонов Готовые (серийные, типовые) проекты каркасных зданий из металлоконструкций и сэндвич панелей Проектные работы. Проектирование в Красноярске
Строительство зданий
Объясняем, рекомендуем, делаем правильно
Как выполняется реконструкция здания и капитальный ремонт Строительство зданий в Красноярске Завод металлоконструкций в Красноярске Изготовление зданий из металлоконструкций Производство строительных работ «под ключ» Производство зданий из металлоконструкций Сколько стоит построить «под ключ» здание из сэндвич панелей Строительство бескаркасных арочных зданий и ангаров С чего начинать строительство здания? Строительство зданий из металлоконструкций и сэндвич-панелей Устройство фундаментов, строительство нулевого цикла Монтаж сэндвич-панелей в Красноярске Промышленные полы, устройство промышленных полов в Красноярске Монтаж металлоконструкций в Красноярске Производство и изготовление металлоконструкций, завод металлоконструкций в Красноярске Реконструкция и капитальный ремонт в Красноярске
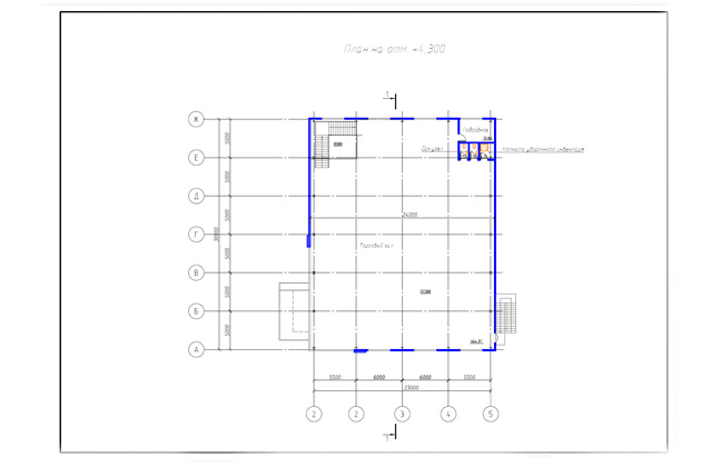
Эскизный проект торгового центра п.Емельяново

Двухэтажный торговый центр. Размеры здания 23х30м. Полезная высота этажа 3,5м. Здание запроектировано из металлического каркаса. Стены и кровля из заводских сэндвич панелей. Перекрытие и полы первого этажа железобетонные монолитные.

Стройтрэйдинг
под ключ качественно
Стройтрэйдинг
под ключ качественно
Стройтрэйдинг
под ключ качественно
Стройтрэйдинг
качественно под ключ
Стройтрэйдинг
качественно под ключ
Стройтрэйдинг
качественно под ключ
Стройтрэйдинг
под ключ качественно
Стройтрэйдинг
под ключ качественно
Стройтрэйдинг
под ключ качественно
Стройтрэйдинг
качественно под ключ
Стройтрэйдинг
качественно под ключ
Стройтрэйдинг
качественно под ключ
Стройтрэйдинг
под ключ качественно
Стройтрэйдинг
под ключ качественно
Стройтрэйдинг
под ключ качественно
Стройтрэйдинг
качественно под ключ
Стройтрэйдинг
качественно под ключ
Стройтрэйдинг
качественно под ключ